Nội dung bài viết
Máy hút mùi Robam A610 với các chức năng đặc biệt, được lắp ráp bởi vật liệu hạng nhất giúp làm sạch không khí, giữ căn bếp trở lên thoáng mát và đảm bảo yếu tố thẩm mỹ cũng như tính bền bỉ theo thời gian. Máy phù hợp với những không gian bếp hiện đại, tăng thêm vẻ sang trọng cho gian bếp của bạn. Chất liệu của máy được làm bằng chất liệu inox cao cấp tăng độ bền cho máy và độ an toàn cho người sử dụn.
Bạn đang tìm cho căn bếp của bạn những thiết bị tuyệt vời vậy thì hãy đến với Bếp Từ Hà Nội chúng tôi là đại lí chính hãng, uy tín về các dòng thiết bị nhà bếp nhập khẩu. Chúng tôi luôn cảm kết bán các sản phẩm chính hãng, mang lại sự thoải mái và đẳng cấp cho không gian bếp nhà bạn.
Các bạn hãy cùng chúng tôi khám phá những thông tin và tính năng cụ thể về model này nhé.
TÍNH NĂNG NỔI BẬT CỦA MÁY HÚT MÙI ROBAM A610
- Máy hút mùi Robam A610 có công suất hút lớn, đảm bảo chất lượng không khí trong bếp, công suất hút máy hút mùi Robam thích hợp căn bếp khoảng 50m².
- Máy hút mùi này có 3 mức công suất hút khói khử mùi.
- Đèn LED chiếu sáng không gian bếp mang lại sự hiệu quả, làm cho không gian bếp thêm sang trọng.
- Chế độ hút mạnh loại bỏ mùi nhanh và hiệu quả.
- Độ ồn tối đa theo tiêu chuẩn châu Âu, không gây khó chịu tiếng ồn âm thanh cho người xung quanh.
- Máy hút mùi Robam sử dụng được thích hợp cho phương pháp hút xả thải hoặc hút khử mùi tuần hoàn.
- Hút mùi Robam tiện lợi trong quá trình bảo dưỡng hoặc sửa chữa thay thế linh kiện.
- Chức năng hẹn giờ tắt máy.
- Chức năng cảnh báo vệ sinh lưới lọc bằng đèn hiển thị.

Máy hút mùi Robam A610
THÔNG SỐ KỸ THUẬT MÁY HÚT MÙI ROBAM A610
- Máy hút mùi Robam A610 với thiết kế kiểu dáng máy hút mùi áp tường
- Công suất động cơ: 200W.
- Đường kính đầu ra: Ø150mm.
- Tần số: 50 Hz.
- Hiệu điện thế: 220-240V.
- Kích thước sản phẩm: 595x350x569mm(WxDxH).
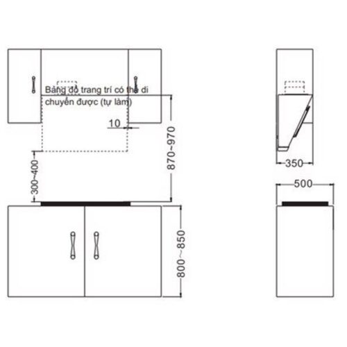
- Kích thước lắp đặt: tham khảo bản vẽ dưới đây.
- Bảo hành: 36 tháng (3 năm).

Thông số lắp đặt của máy hút mùi Robam A610
MUA MÁY HÚT MÙI ROBAM A610 CHÍNH HÃNG TẠI HÀ NỘI
Bếp Từ Hà Nội cam kết bán hàng nhập khẩu chính hãng với giá tốt nhất thị trường, và bảo hành 3 năm, miễn phí lắp đặt tại Hà Nội và hỗ trợ lắp đặt trên toàn quốc. Đến với Bếp từ Hà Nội các bạn yên tâm về chất lượng và giá cả.
Ngoài ra chúng tôi còn phân phối các sản phẩm nhà bếp nổi bật khác mà bạn có thể tham khảo như sau:
=======================================
BẠN HÃY LIÊN HỆ VỚI CHÚNG TÔI
🏳️🌈 Số 14 Kim Ngưu, Phường Thanh Nhàn, Quận Hai Bà Trưng, Thành phố Hà Nội (Gần ngã tư Lò Đúc, Trần Khát Chân)
📞 Gọi mua hàng 0866.584.584 (7:30 – 22:00)
☎ Gọi bảo hành 0968.866.828 (08:30 – 17:00)
📧 Email: Beptuhanoi.com@gmail.com







10 đánh giá cho Máy Hút Mùi Robam A610
Chưa có đánh giá nào.